VINSCO
VINSCO
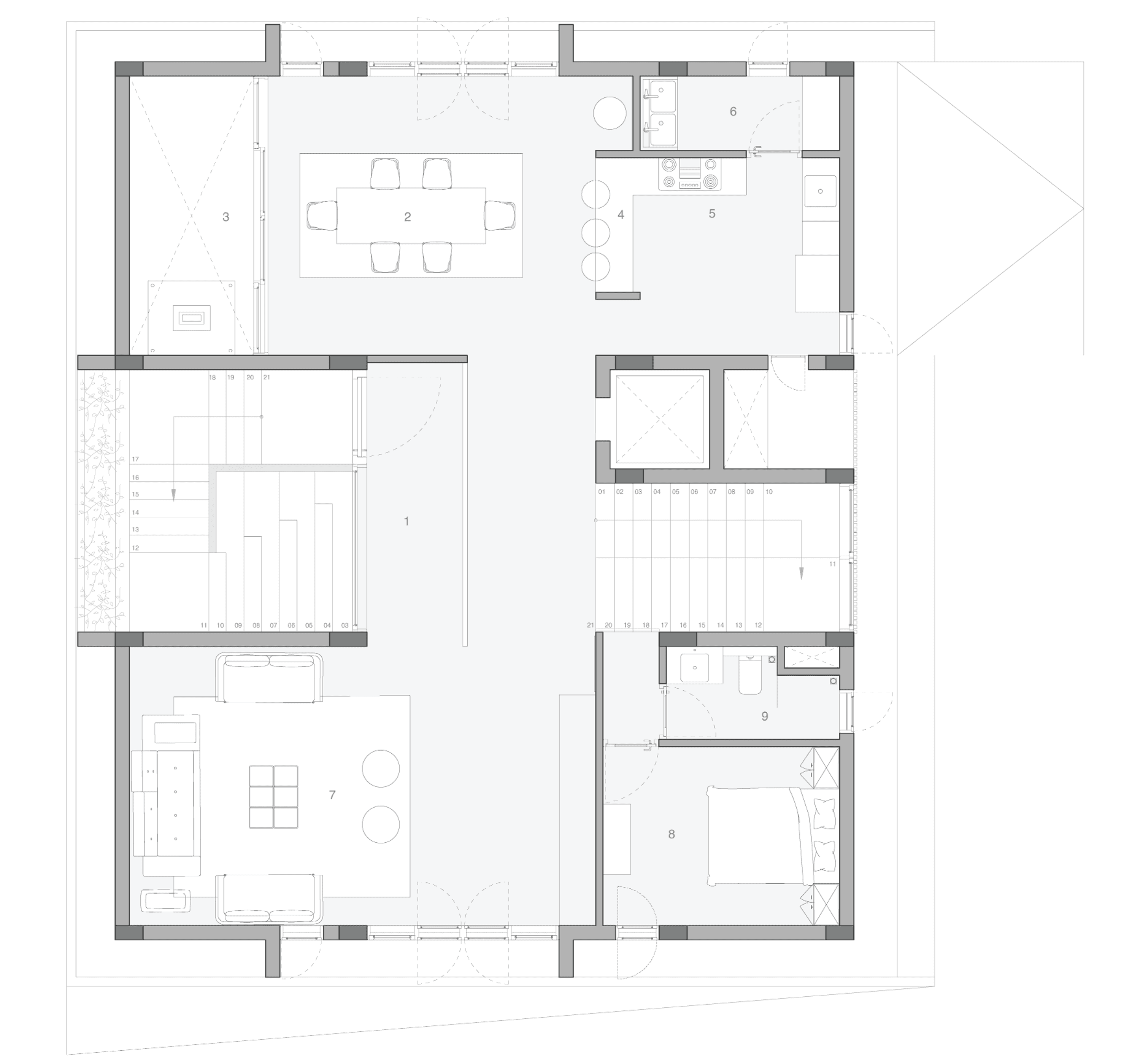
Spanning 12,000 sq. ft. across four floors, this residence for a family of five includes common areas, five bedrooms, and a terrace with a home theatre and glass house. The brief called for a contemporary design using solid natural materials.
Spanning 12,000 sq. ft. across four floors, this residence for a family of five includes common areas, five bedrooms, and a terrace with a home theatre and glass house. The brief called for a contemporary design using solid natural materials.
Typology
Residential interior design
Residential interior design
Year
2024
2024
Team
Deepa (3D visualiser)
Deepa (3D visualiser)
Location
Bangalore, India
Bangalore, India
MENTORS
Ar. Nischal Abhayakumar
Ar. Nischal Abhayakumar
Ar. Jesal Pathak
Ar. Jesal Pathak







1
2
3
4




1
2
3
4
Dining Room
Dining Room
The dining area features a 6-seater table with dusty coral plush chairs, sleek black breakfast chairs which add a dark contrast and a crockery unit. Kota granite flooring was chosen to provide a neutral and easy to clean base.
The dining area features a 6-seater table with dusty coral plush chairs, sleek black breakfast chairs which add a dark contrast and a crockery unit. Kota granite flooring was chosen to provide a neutral and easy to clean base.



Dining Room Moodboard


Dining Room
Master Bedroom and Washroom
Master Bedroom and Washroom
For the master bedroom we kept the mood warm and added hints of sleek black metal. We aso added some tan leather to add warmth with texture.
For the master bedroom we kept the mood warm and added hints of sleek black metal. We aso added some tan leather to add warmth with texture.



Master Bedroom Material Board



Master Washroom Material Board


Master Bedroom
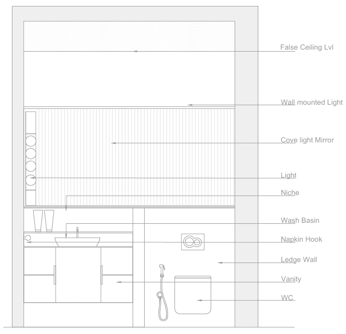
Son's Washroom
Son's Washroom
The vibe for the sons washroom was to elevate the layout which consists of a shower area and bathtub using shades of blue to add a sharp contrast with the marble. We picked brushed gold sanitary fixtures to add texture.
The vibe for the sons washroom was to elevate the layout which consists of a shower area and bathtub using shades of blue to add a sharp contrast with the marble. We picked brushed gold sanitary fixtures to add texture.



Son's Washroom Moodboard
Powder Washroom
Powder Washroom
This washroom for the Terrace party area uses glossy black vertical tiles to create a sleek, elongated effect to enhance light reflection in the compact space. The stone vanity adds a contrasting natural texture. A linear strip window and skylight highlights the geometry of the room and ensures even illumination in an ambient way. The overall material selection focuses on durability, easy maintenance, and a refined, contemporary atmosphere.
This washroom for the Terrace party area uses glossy black vertical tiles to create a sleek, elongated effect to enhance light reflection in the compact space. The stone vanity adds a contrasting natural texture. A linear strip window and skylight highlights the geometry of the room and ensures even illumination in an ambient way. The overall material selection focuses on durability, easy maintenance, and a refined, contemporary atmosphere.














